top of page
This site was designed with the
.com
website builder. Create your website today.
Start Now
In
ARCHITECTURE
ART+DESIGN
ABOUT
More
Use tab to navigate through the menu items.
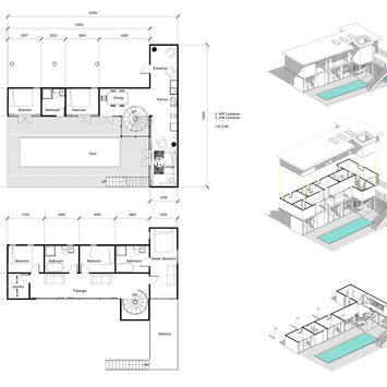
CONCEPT CONTAINER HOUSE DESIGNS
bottom of page